Hotel Ballroom AM/EM Plan
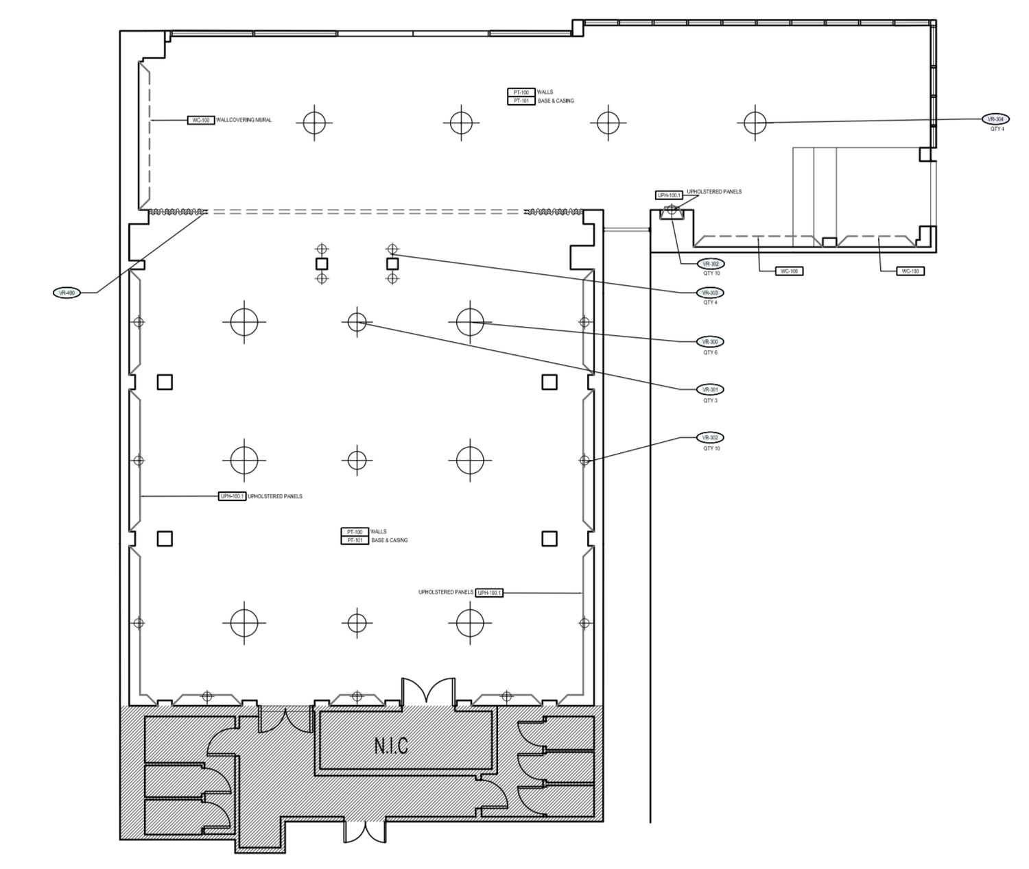
Hotel Ballroom Reflected Ceiling Plan
Hotel Ballroom Wall Finish and FF&E Plan
Hotel Ballroom Floor Covering Plan
Hotel Ballroom Interior Elevations
Private Residence Interior Elevations
Private Residence 1st Floor Furniture Plan
Private Residence 2nd Floor Furniture Plan
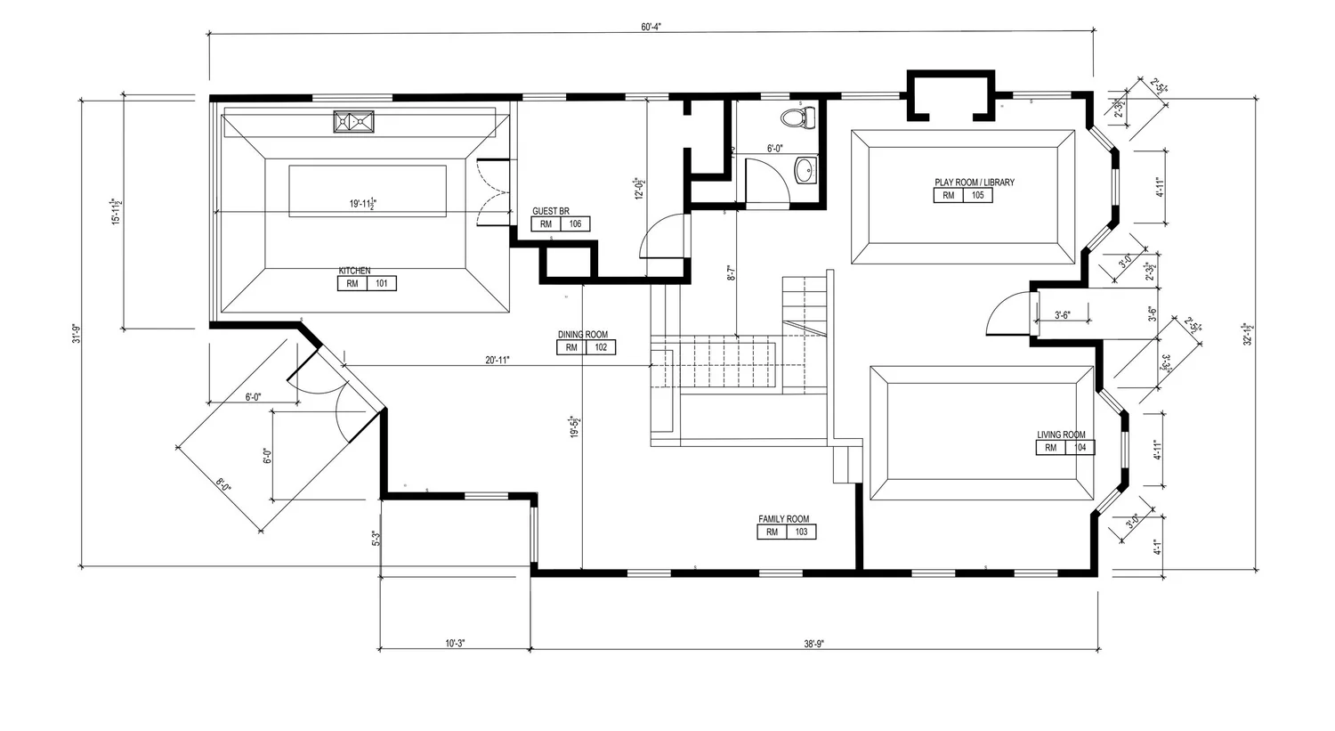
Private Residence 1st Floor Construction Plan
Private Residence 2nd Floor Construction Plan
Private Residence 1st Floor Electrical Plan
Menerey_Master Bedroom Plan_5.24.21.jpg
Private Residence 2nd Floor Electrical Plan
Menerey_Family Room Plan_5.24.21.jpg
Living Option A_5.28.21.jpg
Living Option B_5.28.21.jpg
prev / next